Home
PortaledgeDIY
D4 Ledges
JmDesign
JmClimbs
Original Bigwalls
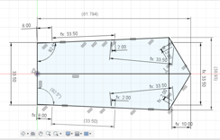
Open Source Delta1p Notes--optimally efficient 6-piece D4 design for compact fold and maximum ergonomic area:
<--DXF file for Delta1p--click Autocad icon